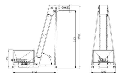
АВТОМАТИЧЕСКИЙ ПОДАЮЩИЙ “Z” ОБРАЗНЫЙ ЭЛЕВАТОР 350
ПОДАЮЩИЙ “Z” ОБРАЗНЫЙ ЭЛЕВАТОР:
-
· Используется для транспортировки сыпучей зерновой продукции, как например зернобобовые, семечки, орехи.
· Автоматический подающий бункер и вибро-подающее устройство изготовленный из нержавеющей стали 304.
· Самая важная особенность – исключение повреждения продукции.
· Отсутствие отхода продукции по сравнению с остальными чашечными элеваторами.
· Возможность производства в разных размерах по заказу.
· Ковши элеватора изготовлены из пластмассы, соответствующей кодексу продовольственных товаров.
· Надежный по конструкции стальной корпус элеватора.
· Весь элеватор покрывается электросталической порошковой краской и высушивается в печи.
· Благодаря этой особенности обеспечивается защита от действия внешних факторов.
· При желании возможно изготовление полностью из нержавеющей стали (хром, никель).
· Возможность производства в разных размерах по заказу.
· Ширина несущих ковшей 350 мм.





